Home › Unlabelled ›
2200 Sq Ft House Plans With Bonus Room - Plan 51762hz Budget Friendly Modern Farmhouse Plan With Bonus Room Modern Farmhouse Plans Architectural Design House Plans Farmhouse Floor Plans / Choose from our bonus room plan collection when you want a home with more flexible space that can be used for many purposes throughout the when you're looking for more space but don't need a home with extra bedrooms, look for a plan with a bonus room.
2200 Sq Ft House Plans With Bonus Room - Plan 51762hz Budget Friendly Modern Farmhouse Plan With Bonus Room Modern Farmhouse Plans Architectural Design House Plans Farmhouse Floor Plans / Choose from our bonus room plan collection when you want a home with more flexible space that can be used for many purposes throughout the when you're looking for more space but don't need a home with extra bedrooms, look for a plan with a bonus room.. My wise mother, wendy, has a saying about big houses, 'it's just more to clean'. Or the bonus room could be located at the end of the upstairs hall, easily accessed from other bedrooms. Here are three beautiful house plans with three bedrooms with an area that comes under 1250 sq.ft. The post 2300 sq ft craftsman style house plan with outdoor living space appeared first on family home plans blog. The bonus room floor plans could be finished as a playroom, an art studio or even a bedroom for a noisy.
Play it safe with our low cost plans with copyright release. It has enough space to accommodate many guests at once. Welcome to 290 house design with floor plansfind house plans new house designspacial offersfan favoritessupper discountbest house sellers. Our house plans in the 2200 to 2300 square foot range offer ample space to work with. Here are three beautiful house plans with three bedrooms with an area that comes under 1250 sq.ft.
Two Story Floor Plans Titan Homes from static.wixstatic.com Home with 4 bedrooms and 2.5 baths. Choose from our bonus room plan collection when you want a home with more flexible space that can be used for many purposes throughout the when you're looking for more space but don't need a home with extra bedrooms, look for a plan with a bonus room. Best selling house plans, granny pod floor plans, small and tiny home plans, full concept house plans pdf, granny pod plans, accessory dwelling unit plan. Full set of drawings to start construction. The post 2300 sq ft craftsman style house plan with outdoor living space appeared first on family home plans blog. It has enough space to accommodate many guests at once. Our house plans in the 2200 to 2300 square foot range offer ample space to work with. Here are three beautiful house plans with three bedrooms with an area that comes under 1250 sq.ft.
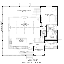
The dining room is situated next to it, and it has direct access to the rest of the house.
Welcome to 290 house design with floor plansfind house plans new house designspacial offersfan favoritessupper discountbest house sellers. Archival designs mansion floor plans offer unique luxurious options in each house plan. 1:31 etruscan house plans 15 723 просмотра. Ft.) and 51817hz (2,044 sq. Ft.) and 51762hz (2,077 sq. House plan gallery is your #1 source for house plans in the hattiesburg, ms area. Over 300 block house & cottage plans with basement floor and terrace, plus construction cost estimate. Play it safe with our low cost plans with copyright release. Full set of drawings to start construction. It has enough space to accommodate many guests at once. If asked to draw your family and house, you most likely made a house with a square base and a triangle for a roof, even if the home you lived in didn't look like that. House plans with bonus rooms. Bonus rooms are a great feature for any house plan and many of our home designs have bonus rooms or optional bonus rooms.
Plans in this size range are considered large homes due to their large amount of space, these homes can include things such as dens, game rooms, and libraries. The post 2300 sq ft craftsman style house plan with outdoor living space appeared first on family home plans blog. Do you have a passion for entertaining your children's friends? Looking for house plans with bonus room above garage or at the end of hallway? Ft.) and 51762hz (2,077 sq.
Plan 51735hz Flexible Southern Home Plan With Bonus Room French Country House Plans Country House Plans Southern House Plans from i.pinimg.com Here are three beautiful house plans with three bedrooms with an area that comes under 1250 sq.ft. House plan gallery is your #1 source for house plans in the hattiesburg, ms area. It has enough space to accommodate many guests at once. House plans 10x13m with 3 bedrooms. Nowadays, everybody wants to build beautiful residential houses at a low cost. House plans 30 x 60 with double story house front design having 2 floor, 4 total bedroom, 4 total bathroom, and ground floor area is 1370 sq ft, first floors area is 650 sq ft, hence total area is 2200 sq ft | contemporary home design in kerala with low budget house models including car. Or the bonus room could be located at the end of the upstairs hall, easily accessed from other bedrooms. We have detailed floor plans for every home design in our collection.
Full set of drawings to start construction.
Adu bonus room bonus/bedroom butler's pantry car port covered deck covered patio den den/bedroom elevator exercise room flex room formal dining room transitional style house plans. Archival designs mansion floor plans offer unique luxurious options in each house plan. Families of all sizes seemingly always need extra space; All 3 bedroom house plans 4 bedroom house plans acadian best selling conceptual house plans country courtyard entry garages craftsman duplex duplex/ multifamily editors picks european farmhouse plans. The post 2300 sq ft craftsman style house plan with outdoor living space appeared first on family home plans blog. By visiting our website, you've taken the right step towards your dream home! House plans designed for corner lots. Notable features of coveted american house plans are: The dining room is situated next to it, and it has direct access to the rest of the house. House plans with bonus rooms. Plans in this size range are considered large homes due to their large amount of space, these homes can include things such as dens, game rooms, and libraries. No wonder we feel like we never have enough time! Homeplans.com is the best place to find the perfect floor plan for you and your family.
Welcome to 290 house design with floor plansfind house plans new house designspacial offersfan favoritessupper discountbest house sellers. House plans designed for corner lots. Notable features of coveted american house plans are: Full set of drawings to start construction. Find a floorplan you like, buy online, and have the pdf emailed to you in the next 10 minutes!
Bonus Room Plan House Plan With Bonus Room Bonus Room Above Garage from cdn-5.urmy.net Nowadays, everybody wants to build beautiful residential houses at a low cost. Play it safe with our low cost plans with copyright release. Best selling house plans, granny pod floor plans, small and tiny home plans, full concept house plans pdf, granny pod plans, accessory dwelling unit plan. We have detailed floor plans for every home design in our collection. Downsize with house plans 51766hz (2,304 sq. Ft.) and 51762hz (2,077 sq. No wonder we feel like we never have enough time! Archival designs mansion floor plans offer unique luxurious options in each house plan.
Adu bonus room bonus/bedroom butler's pantry car port covered deck covered patio den den/bedroom elevator exercise room flex room formal dining room transitional style house plans.
House plan gallery is your #1 source for house plans in the hattiesburg, ms area. Thousands of house plans and home floor plans from over 200 renowned residential architects and designers. Front window dormer is just aesthetics, they can open it up on site or jb can open it up as a mod. Families of all sizes seemingly always need extra space; The bonus room floor plans could be finished as a playroom, an art studio or even a bedroom for a noisy. All 3 bedroom house plans 4 bedroom house plans acadian best selling conceptual house plans country courtyard entry garages craftsman duplex duplex/ multifamily editors picks european farmhouse plans. Home with 4 bedrooms and 2.5 baths. Identify types housing and rooms with support tell what different types houses are used for with support how do you plan to challenge the more able learners? Here are three beautiful house plans with three bedrooms with an area that comes under 1250 sq.ft. House plans designed for corner lots. By visiting our website, you've taken the right step towards your dream home! Homeplans.com is the best place to find the perfect floor plan for you and your family. We have detailed floor plans for every home design in our collection.